Exclusiva planta principal con jardín privado en Eixample Derecho
Descripción
VENTA DE NUDA PROPIEDAD
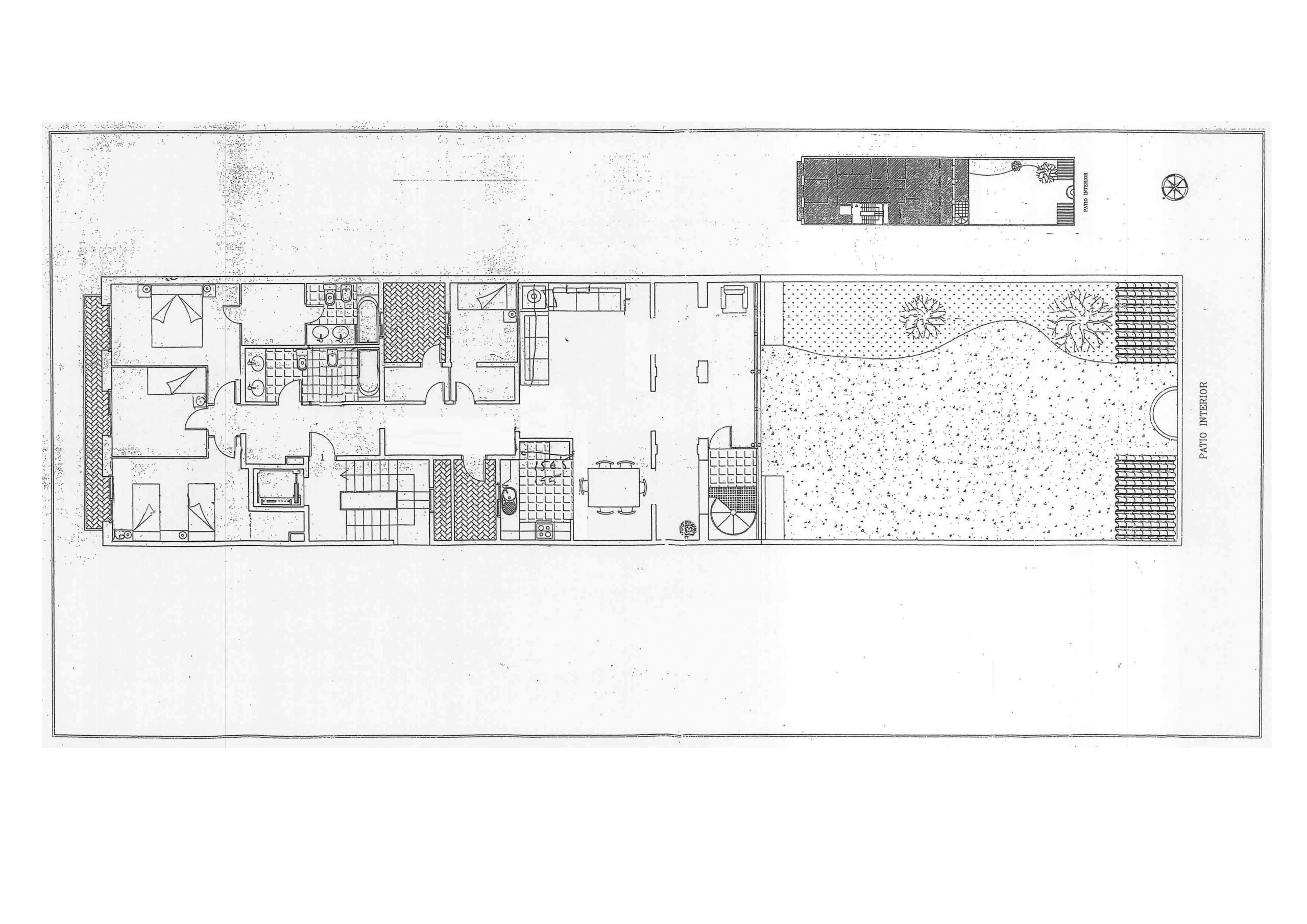
Espectacular vivienda de 187m2 según catastro (160m2 útiles de vivienda) que ocupa toda la planta Principal de un edificio del año 1900 (renovado íntegramente hace unos 20 años). Doble fachada y orientación con grandes aperturas acristaladas que ofrecen gran luminosidad a toda la vivienda.
Distribución: Salón de 60m2, cocina office, 4 dormitorios (1 de ellos tipo suite con baño y vestidor), 2 baños completos, 2 patios de luces. Balcones y Jardín de 130m2.
En planta baja se encuentra el jardín de uso privativo y exclusivo (incluido en escritura) del piso. Un espacio impensable de encontrar en esta privilegiada ubicación. Un auténtico oasis de tranquilidad, privacidad y sol (lugar ideal para instalación de piscina privada).
Exclusiva ubicación a tan solo 4 calles de Paseo de Gracia. Zona con todos los servicios y excelente comunicación. (cerca parada de metro Girona).
Oportunidad Única para añadir una pieza tan exclusiva al patrimonio familiar. Excelente inversión a largo plazo.
Dirección
-
Dirección Dreta Eixample, Barcelona
-
País España
-
Province/State Barcelona
-
City/Town Barcelona
-
Barrio Dreta Eixample
-
Postal code/ZIP 08009